27+14
Aquesta propietat, construïda el 1872, es situa al emblemàtic carrer de Montcada del districte de Ciutat Vella de Barcelona. En el cor d'un nucli cultural notable, que reflecteix l'estructura medieval característica dels palaus residencials, que van prosperar durant el període gòtic civil català.
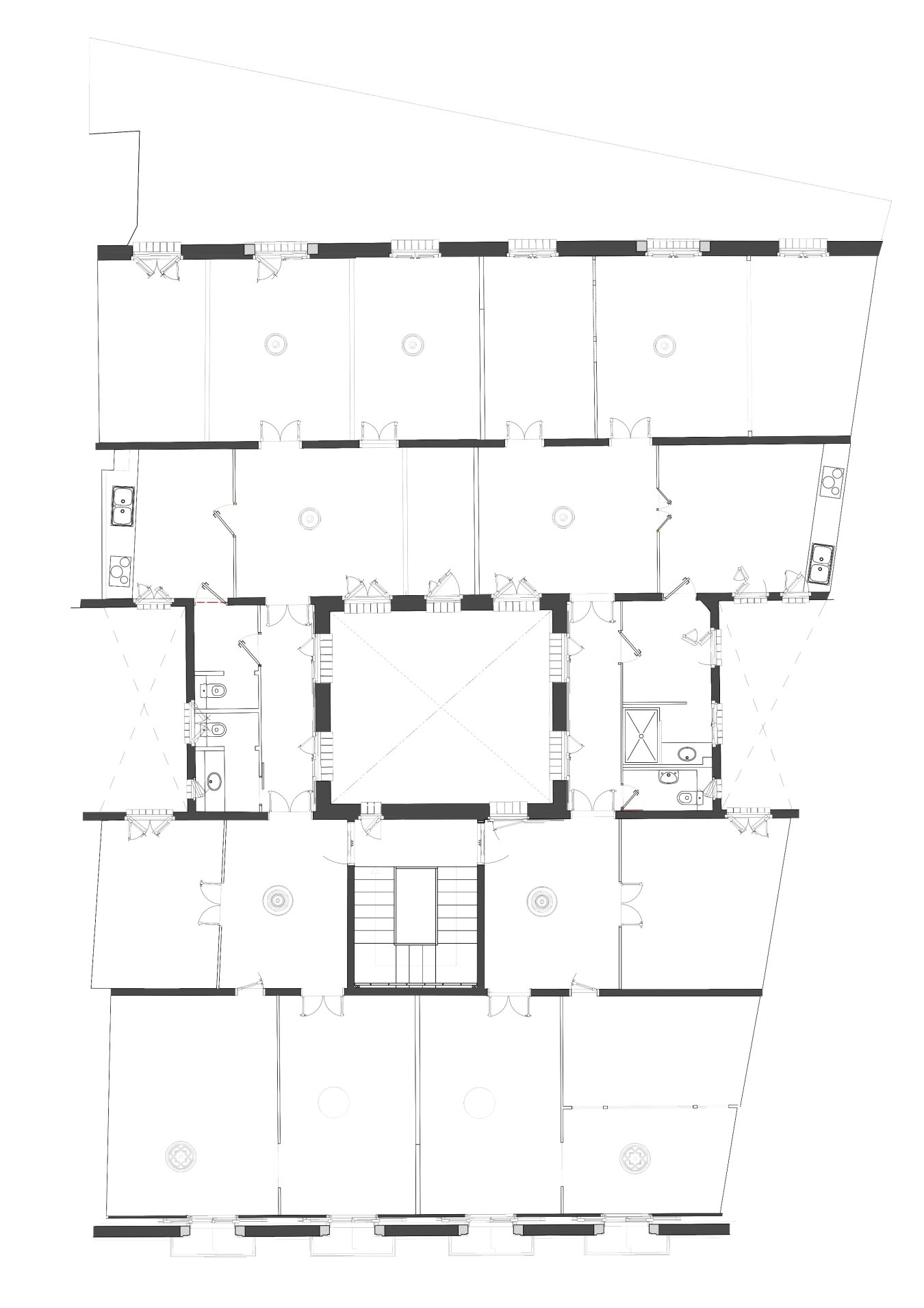
Aquest projecte, resultat d'un concurs restringit, persegueix restaurar les entrades, l'exterior i l'interior de vuit pisos de 150 m² distribuïts en quatre plantes, amb l'objectiu de reactivar-ne l'ús i rescatar l'atmosfera única d'un edifici plurifamiliar protegit com a lloc d'interès urbà del Catàleg de Patrimoni de l'Ajuntament de Barcelona.
Quan vam començar el projecte, vam trobar plantes que havien estat greument malmeses, cosa que va requerir un treball arqueològic meticulós. Entre altres coses, va ser important despullar l'espai de tots els elements afegits per veure quins encara tenien el privilegi de perdurar al llarg del temps. Amb l'espai despullat, van aparèixer magnífics llindars de pedra, amagats sota revestiments de façana incongruents; 14 esplèndids mosaics de Nolla i 27 rajoles hidràuliques de colors vius enterrades sota paviments poc considerats i una multitud de sostres enteixinats, que van donar vida a diverses històries d'un passat aparentment magnífic.
Quan l'interès per l'espai semblava haver renascut, es va decidir instal·lar curosament una sèrie d'infraestructures domèstiques. Així, a l'interior, i a través de la fusta, el marbre local i la ceràmica vidriada, en un cert equilibri amb els descobriments trobats, s'introdueix un programa d'habitatge que coexisteix, a través de múltiples interseccions, amb alguns dels fantasmes del seu passat.
Localització: Barcelona
Client: Privat
Fotografia: Adrià Goulà + Joan Casals
Publicacions
AAVV. La poesie du detail:Les sols d’AGORA. L’architecture d’aujourd’hui, no 458, pp.124-129
AAVV. Premios FAD 2021. ON diseño, núm. 403-404, 2021, p.140
AAVV. VIII Premio de arquitectura ascensores Enor. Vigo: Enor Lda, 2020, pp.434-435
MIMBRERO, David. Rehabilitación del acceso de un edificio de viviendas en Barcelona. TECTÓNICA. [online] 29/01/20
DIOSDADO, Ana. Restauración en Ciutat Vella. METALOCUS. [online] 20/12/19
PELUSO, Salvatore. Architects-archaeologists rediscover the history of a building in Barcelona. DOMUS. [online] 09/12/1
Premis
2021 Seleccionats Premis FAD Interior 63a Edició
2020 Seleccionats Premis Catalunya Construcció 17a Edició
2020 Seleccionats Premi d’Arquitectura Enor VIII Edició































