A l'abric d'un mur
Ens trobem al Baix Empordà. A sobre d’un petit penya-segat, dominant un conjunt de camps plens de gira-sols. Davant del mar, aguaitat fortament pels vents de la tramuntana. Darrere d’un vell mur d’una casa, que custodia en ruïnes la seva masia i territori annex.
L’encàrrec requereix reconstruir l’edificació trobada perseguint la idea d’un lloc on passar el cap de setmana.
El projecte se situa a l’abric de l’únic mur que encara resisteix a peu el pas de el temps.
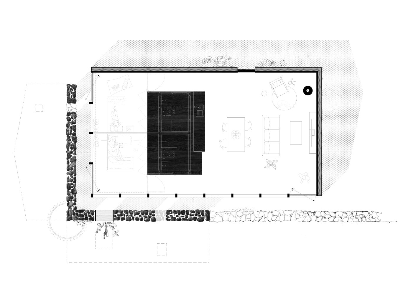
Dues habitacions es situen protegides de les vistes alienes del sol càlid d’estiu i del vent fred de l’hivern. Una amb orientació Sud, treu el cap en un extrem de la paret. Una altra amb orientació Sud i Est, penetra al centre del mur, a través d’una petita finestra que permet connectar temps diferents a l’horitzó. Salvat el mur, apareix el gran saló dominant les vistes. De forma exempta i en la part central de la casa, una caixa negra conté tots els serveis domèstics. Dos banys de nou revelen el context, a través del reflex dels miralls i de les rajoles esmaltades. Competint amb les vistes de la sala, la cuina participa del recurs dels banys, aprofitant el polit del marbre.
En realitat, tot s’explica en un petit desplaçament de 80cm que separa les traces de la vella edificació de la nova. La subtil dislocació, evita descalçar la vella construcció en l’execució de la nova. Permet estabilitzar-la donant espai a un extradós de pedra seca, que utilitza roques soltes provinents de l’excavació de la solera vista. Però sobretot, força a deambular constantment entre uns límits que indeterminen la presència d’ambdues realitats. En la mateixa direcció es posen sobre la base 11 pilars prefabricats de fusta paral·lels al mur existent. Una estructura vertical, que a través de la transparència i esveltesa, s’erigeix capaç de recompondre la ruïna. Contraposada a aquesta, a la cantonada contrària, un nou abric de fusta completa el tancament vertical i horitzontal de la nova casa. Aquesta vegada es tracta d’una closca contínua construïda en CLT. En l’horitzontal, es poden veure reutilitzades un conjunt de teules velles de l’entorn. En la vertical, la paleta d’un paleta local, llançant de nou morter de sorra gruixuda. En una mimesi productiva amb els elements que en realitat construeixen el lloc.
Localització: Torroella de Montgrí
Client: Privat
Fotografia: Joan Casals
Publicacions
AAVV. Recuperación de la casa del guardés en una masía del Baix Empordà. TECTÓNICA. [online] 10/05/22
AAVV. Al abrigo de un muro. Arquitectura Viva. [online] 21/03/22
TESTONI, Chiara. A contemporary reconstruction between stone walls and sunflowers. DOMUS. [online] 26/01/22
GUAILLA, Edwin. Al abrigo de un muro. METALOCUS. [online] 23/11/21
AAVV. VIII Premio de arquitectura ascensores Enor. Vigo: Enor Lda, 2020, pp.434-435
Premis
2023 Seleccionats Premis Catalunya Construcció 20a Edició
2023 Seleccionats Premi d’Arquitectura Enor IX Edició
2022 Seleccionats Premis d’Arquitectura de les Comarques de Girona 24a Edició
2022 Menció Premi d’Arquitectura de Teula Hispalyt V Edició























