Casa amb pati, entre dues terrasses
El projecte està situat a l'àtic d'un complex residencial construït a finals del segle XIX al barri de Sants. L'apartament està retranquejat respecte a la façana principal. Aquesta és una pràctica habitual a les nostres ciutats, que beneficia els carrers en proporcionar-los més llum i aire, i sovint beneficia els residents en proporcionar-los una terrassa compartida.
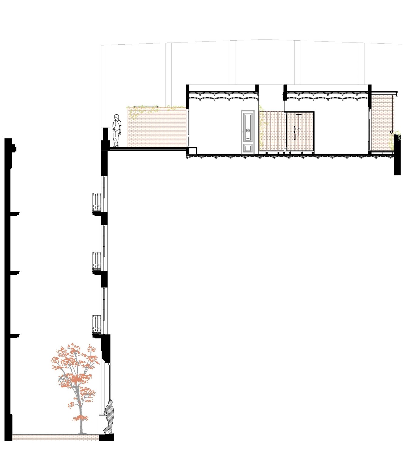
En el nostre cas particular, tenim un pis de 40 m² amb dues terrasses i un pati de llum central.
Les terrasses presenten una contradicció. La terrassa principal, orientada al sud, dóna al carrer i és d'ús privat, però s'hi accedeix exclusivament per l'escala de veïns. A la terrassa posterior, que dona al nord i mira al pati, els tancaments han anul·lat el caràcter exterior de l'espai, ofegant-ne l'interior.
El pati no compleix la seva funció; en ser inaccessible, les seves petites obertures ni permeten la ventilació ni aporten llum a l'espai.
Pel que fa a la terrassa principal, es va decidir eliminar l'accés comunitari i transformar dues petites finestres de dues habitacions antigues en un accés privat doble. Això permet ampliar l'espai habitable interior i gaudir d'una zona exterior, on una barbacoa i un magatzem amb una coberta ajardinada que puja a través d'una pèrgola, actuant com a pont entre ambdós, protegiran els usuaris de l'ombra durant els mesos calorosos.
Pel que fa a la terrassa posterior, es va decidir eliminar totes les tancades superposades. Això redescobreix una façana que originalment proporcionava aire i llum a les habitacions interiors.
Tot això permet que la casa flotei de nou entre dos espais exteriors/terrasses, potser per primera vegada en connexió directa amb l'interior. És en aquest punt quan el pou de llum sembla adquirir un interès més gran, ja que en alliberar-lo de les seves restriccions se'n revela el significat, transcendint la seva funcionalitat, perquè ara no només la casa pivota entre dues terrasses, sinó que cadascuna de les seves estances ho fa entre dos espais exteriors, reproduint a menor escala el que passa a un nivell superior.
Un cop establerts aquests nous diàlegs, el projecte es va centrar en la materialitat i l'organització de l'espai del projecte. Les proves inicials van revelar valuosos paviments hidràulics que es van recuperar i posteriorment es van traslladar d'acord amb el nou programa. Es van retirar pantalles de canya malmeses per la humitat, exposant elements estructurals de la coberta que havien estat encalit. Al mig de l'espai, es va decidir col·locar una caixa de pi que conté les zones humides, separant el sector públic del privat i permetent un moviment lliure molt útil entre els espais. A l'interior de la caixa, una dutxa de rajoles s'estén cap al pati. En realitat, és l'exterior el que s'ha estès per tota la casa.
Localització: Barcelona
Client: Privat
Fotografia: Joan Casals
Publicacions
AAVV. Mostra d’arquitectura de Barcelona 2016-18 3ª Edició. Barcelona: COAC, 2022
MUÑOZ, Álvaro. Casa Masnou. METALOCUS. [online] 07/05/19
PRIETO, Nuria. Casa con patio, entre dos terrazas. TECTÓNICA. [online] 7/05/18
Premis
2020 Premi Mostra d’Arquitectura Catalana de Barcelona 3a Edició









