Casa entre un celobert
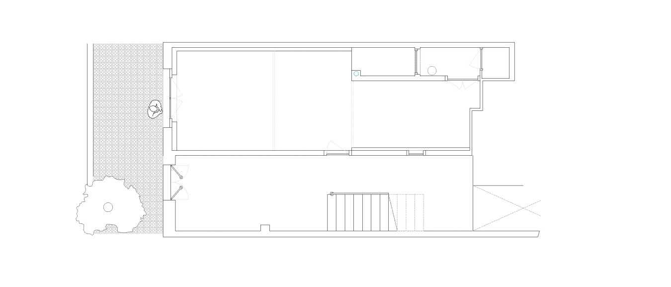
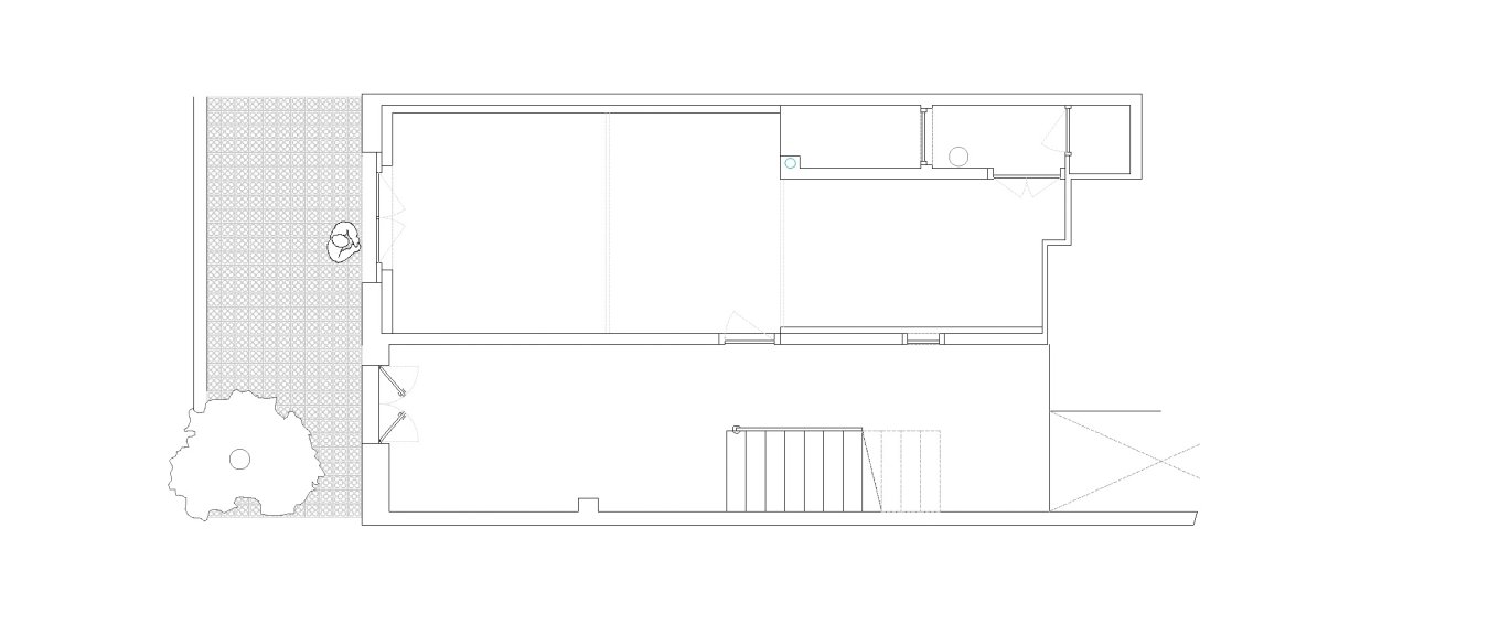
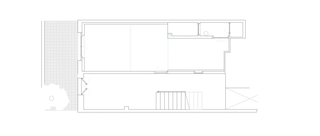
La intervenció es situa en la planta baixa d’un conjunt residencial ubicat en el barri de Les Corts de Barcelona. Un lloc on la totalitat de la superfície disponible va ser edificada. Un encaix en el que van desaparèixer els espais lliures interiors i com a conseqüència van aparèixer un conjunt de nombrosos patis amb la fi de garantir unes condicions higièniques mínimes.
Va ser la intenció de guanyar fos com fos uns pocs metres més en la planta baixa, el que va convertir aquests espais intersticials en superfícies cobertes auto-construïdes. També va ser la mala execució que va acompanyar aquesta praxis, el que va anular el sentit original de il·luminar i ventilar els espais més obscurs a través d’aquestes útils peces.
Així poc a poc arribaria la insalubritat. Més tard l’abandonament.
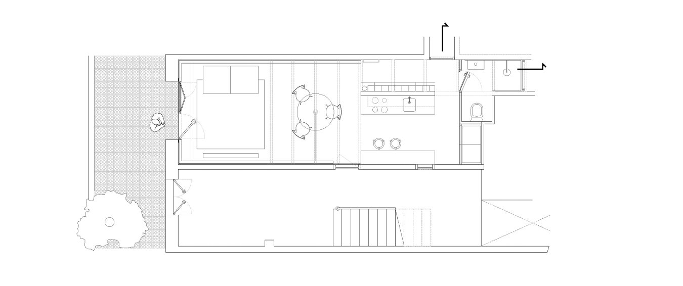
Es va pensar en l’oportunitat de re-apropiar-se d’aquesta moltes vegades situació residual aprofitant la necessitat de haver de implantar un flexible programa d’habitatge de trenta cinc metres quadrats en aquest context.
S’instal·la així un entarimat sanitari que en continuïtat amb uns extradossat verticals de bloc de formigó creen una compartida càmera d’aire amb ventilació creuada per controlar les humitats de la planta baixa. Serveix també el nou extradós com recolzament d’un altell més privat que ventila un possible dormitori a través de la façana principal. Després una molt útil doble circulació facilita la instal·lació d’una petita cuina en mig del espai que, depenent de les necessitats d’ús del mateix, fàcilment pot convertir-se en una segona sala amb accés individual. Una fronterera caixa de fusta de bedoll apareix en l’espai contenint tot un programa humit que convergeix cap al exterior. També una translúcida caixa de policarbonat re-apropiant-se d’un celobert despullat que de nou commou vivament la experiència exterior en el interior. Recuperant de nou el sentit original del pati redescobert. Posant-lo de nou en acció.
Localització: Barcelona
Client: Privat
Fotografia: Joan Guillamat + Joan Casals
Publicacions
AAVV. Futuro Imperfecto. Arquia Próxima 2016. Barcelona: Fundacion Arquia, 2016, pp.58-59
AAVV. Casa Caballero. Plataforma Arquitectura. [online] 23/06/16
AAVV. Casa Caballero. DIVISARE. [online] 12/08/16
AAVV. Casa Caballero. La casa de la arquitectura. Obra destacada. [online] 2024
Premis
2018 Premi AJAC Reforma Interior XI Edició
2016 Finalistes Premis Arquia Próxima V Edició




















