Casa mirant una antiga filatura
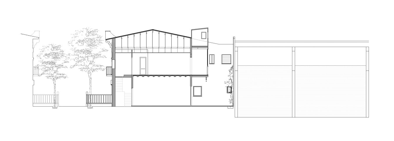
La intervenció està situada a l'última planta d'un edifici catalogat al Passatge de Tubella de Barcelona, complementant un sistema d'espais oberts que forma un eix de connexió entre els Jardins de les Infantes i el Parc de l'Espanya Industrial, passant per la Plaça del Centre.
Un pas privat format per un conjunt de cases unifamiliars adossades, dissenyades el 1925 per oferir condicions de vida i treball saludables als treballadors qualificats de les diverses indústries del barri de Les Corts, que encara sorprèn avui dia per la seva unitat estilística, l'escala urbana i la riquesa dels seus jardins davanters i la distribució dels seus patis interiors.
En aquest entorn, compartint una paret mitgera amb les antigues Filatures Benet Campabadal, ara convertides en una biblioteca municipal, es va plantejar el repte d'introduir un espai de treball a la zona de dormitoris de la casa, millorant-ne l'ús residencial i reparant la coberta per solucionar algunes goteres. Ben aviat vam descobrir com alguns volums incongruents, una galeria cega i una terrassa enterrada s'havien allunyat dels valors inicialment pretesos pels promotors del passeig, afectant greument el conjunt i les possibilitats d'espacialitat interior.
Una fase inicial de demolició allibera la terrassa i la galeria a l'exterior, permetent que el pati interior torni a interactuar amb els espais oberts de l'entorn, alhora que obre la possibilitat que nous usos colonitzin els espais antics. Un segon moviment de neteja revela l'interior d'un contenidor que busca distingir-se d'un exterior marcat pel color blanc. A continuació, s'hi col·loquen artefactes de ferro negre, establint un vincle amb el món industrial dels voltants i contenint silenciosament el programa residencial i laboral de la casa.
Una escala polida condueix els visitants a un passadís hermètic al qual només els habitants poden accedir. Aquí, l'única opció que s'ofereix als desconeguts en forma d'escala és per accedir a un altell reservat per a l'espai de treball de la casa, responent a les noves demandes industrials. Darrere d'aquest secretisme, dues habitacions connectades per un vestidor permeten el moviment lliure en privat. Una terrassa exterior sembla envair l'interior, insinuant una relació entre la casa i el seu antic entorn de treball. En creuar un darrer llindar que conté el bany principal de la casa, s'accedeix a una nova dutxa que substitueix l'antiga bugaderia, accentuant la disjunció.
Localització: Barcelona
Client: Privat
Fotografia: Joan Casals
Publicacions
AAVV. Casa Tubella. Arquine. [online] 15/06/18
OÑATE, Inés. Casa Tubella. METALOCUS. [online] 10/05/18
PRIETO, Nuria. Casa con patio, entre dos terrazas. TECTÓNICA. [online] 7/05/18
ANTONACCI, Paolo. Casa Tubella. DIVISARE. [online] 4/05/18

















